Trilocale in vendita

Aosta, via Giuseppe Garibaldi - Arco D'Augusto
€ 175.000
Prezzo aggiornato
4 locali 4 locali
94 Mq 94 Mq
1 bagno 1 bagno

Trilocale in vendita

Aosta, via Giuseppe Garibaldi - Arco D'Augusto

Descrizione annuncio

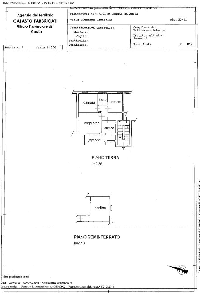
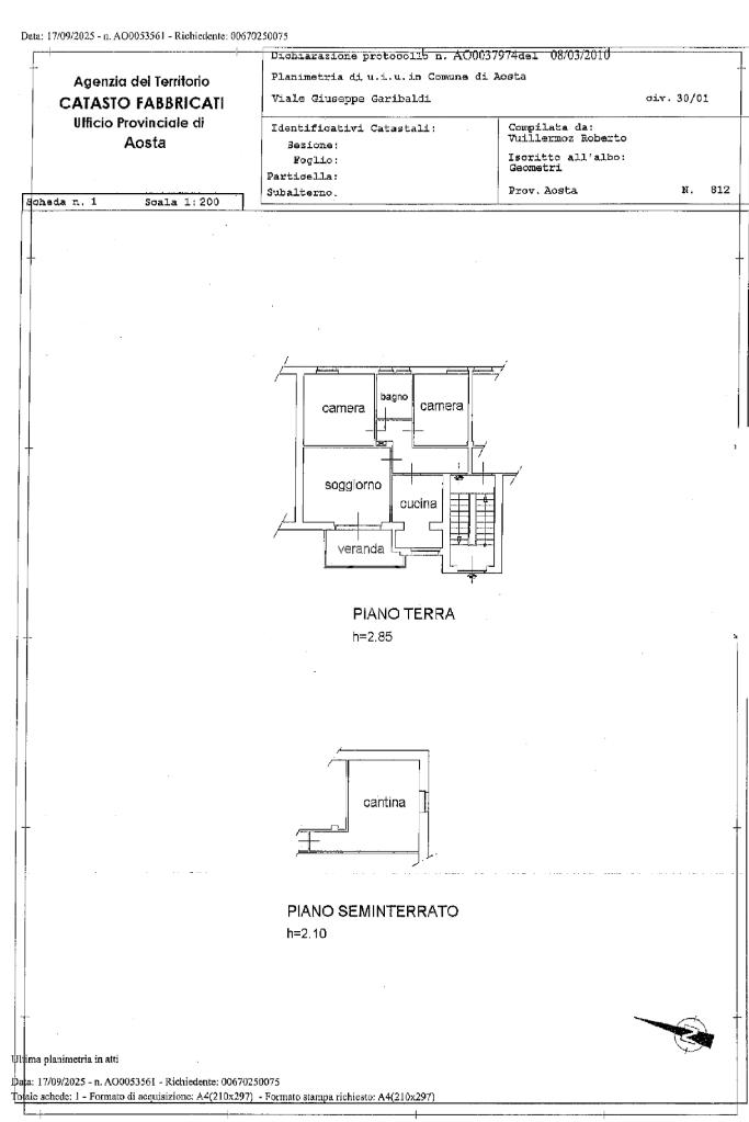
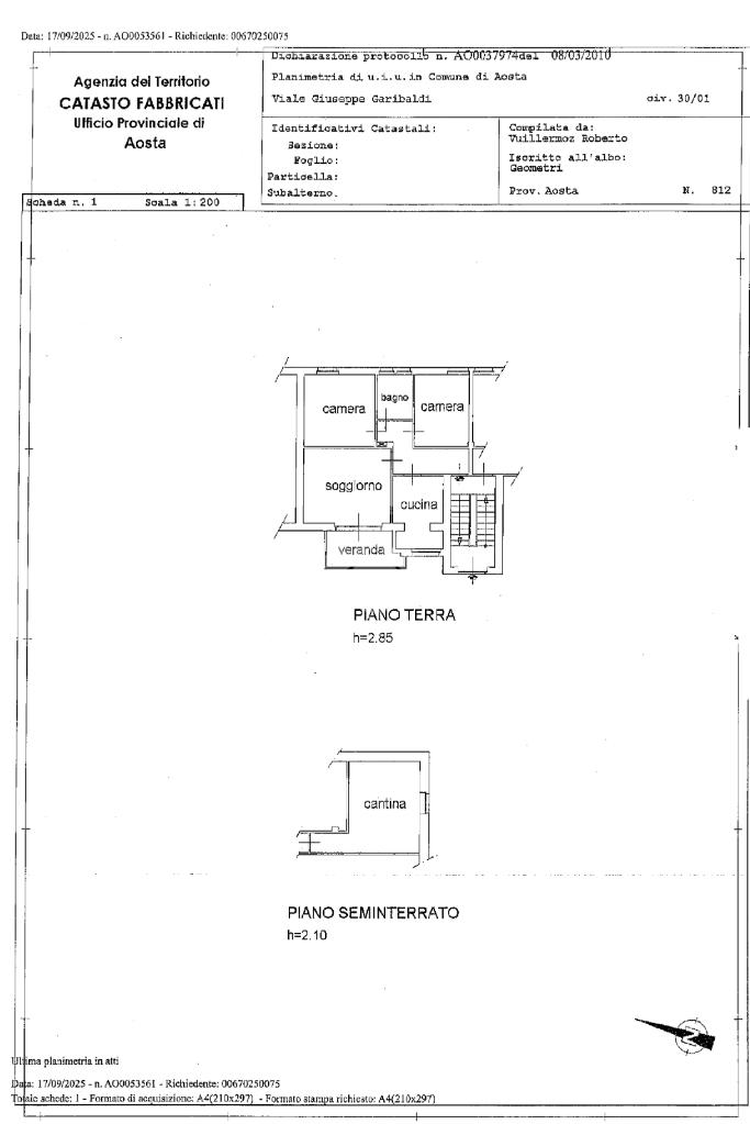
Aosta via Garibaldi.

Spazioso trilocale al piano rialzato di una piccola palazzina del centro, situato in una zona ben servita da mezzi pubblici e negozi di prima necessità, a pochi passi dalla via pedonale ed a 600 metri ca dalla partenza della telecabina di Pila. Ottima opportunità per chi cerca comfort e comodità in posizione strategica.

L'alloggio offre spazi ampi e ben distribuiti: un'area di ingresso conduce alla cucina abitabile, il soggiorno è caratterizzato da un terrazzo verandato e rappresenta un ambiente luminoso e confortevole. Un disimpegno, con pratico armadio a muro, collega alle due camere da letto ed al bagno, dotato di doccia.

L'appartamento dispone di una grande cantina pavimentata, con finestra e corrente elettrica, ideale come deposito o locale aggiuntivo.

Davanti alla palazzina si trova un ampio parcheggio comunale, dotato di colonnina per la ricarica elettrica.

Mostra tutto

Nelle vicinanze

Trasporto pubblico Trasporto pubblico
Aosta
Aosta
540 m
stazione di Aosta
stazione di Aosta
550 m
Viale Giuseppe Garibaldi
Viale Giuseppe Garibaldi
30 m
Via Caduti del Lavoro (Pesa)
Via Caduti del Lavoro (Pesa)
90 m
Ricariche auto elettriche Ricariche auto elettriche
Duferco Aosta Arco di Augusto
280 m
Hotel Duca d'Aosta
590 m
Duferco Aosta Col du Mont
650 m
Duferco Aosta Rey
760 m
Duferco Parcheggio Aosta Pila
870 m
Scuole Scuole
Istituto Magistrale R.M.Adelaide
260 m
Scuole Elementari Ponte di Pietra
430 m
Palestra Saint Roch
530 m
Istituzione Scolastica Aosta 1
730 m
Conservatorio
790 m
Farmacia Farmacia
Farmacia Moderna
290 m
Farmacia Comunale 2
410 m
Farmacia Centrale
600 m
Papone Dott. Corrado
780 m
Dott. Nicola
840 m
Ospedali Ospedali
Ospedale Beauregard
1,2 Km
Hôpital régional d'Aosta Umberto Parini
1,3 Km
Servizio Ausili AUSL Valle d'Aosta
1,8 Km
Supermercati Supermercati
La bottega Simply
90 m
Carrefour Market
440 m
Alimentari
1,0 Km
Supermercato Gros Cidac
1,0 Km
Lidl
1,5 Km
Negozi Negozi
Negozi
350 m
Merceria La Filanda
360 m
Robe di Kappa
370 m
primigi
390 m
Merceria Corsi
390 m
Bar Bar
Bar
360 m
Bataclan
390 m
Le Bar a Vin
520 m
Villettaz
600 m
Cristallo
600 m
Ristoranti Ristoranti
Ristorante Pizzeria Stadio
150 m
Pizzeria Bella Napoli
230 m
PUBurger
260 m
Ristorante pizzeria La Brace
260 m
Société
280 m
Mostra tutto

Caratteristiche

Rif.:
61111810
Piano:
Rialzato di 3
Totale piani:
3
Terrazzi:
1
Camere da letto:
2
Arredamento:
Assente
Mostra tutto
Prezzo Prezzo
€ 175.000
Rata mutuo Rata mutuo
€ 815 / mese
Spese annue Spese annue
€ 1.700
Proponi il tuo prezzoProponi il tuo prezzo

Classe Energetica

G
G
G
G
G
G
G
G
G
EP globale non rinnovabile:
216.72 kW h/m² anno
EP globale rinnovabile:
16.84 kW h/m² anno
EP invernale del fabbricato:
EP estiva del fabbricato:
Anno di costruzione:
1950
Riscaldamento:
Centralizzato
Tipo impianto:
A radiatori
Tipo alimentazione:
Metano

Prezzo ridotto di €1 (3%%)

Ti interessa visionare l'immobile?

Fissa un appuntamento  Fissa un appuntamento

Richiedi informazioni

Clicca su Leggi per aprire l'informativa
* Questi campi sono obbligatori

Calcola il tuo mutuo

Semplice e senza impegno
Anticipo

( % )
Mutuo

( % )

pochi semplici passi

inserisci i tuoi dati
Questionario completato
Grazie per aver richiesto un appuntamento senza impegno con un nostro Consulente del Credito e Assicurativo.

Hai inserito correttamente tutti i dati necessari e a breve riceverai una e-mail con un link da convalidare per inviare i tuoi dati.
Affiliato
Studio Aosta 2 Snc
Via Boson, 1 (Angolo Via Torino), 11100 Aosta (AO)

Il nostro staff


  • Cristian Nicco
    Affiliato

  • Luca Paolo Danilo Gubbiotti
    Affiliato

  • Francesca Pesenti Campagnoni
    Coordinatrice
Via Boson, 1 (Angolo Via Torino), 11100 Aosta (AO)
Zona: Aosta-Arco D'Augusto
Mostra su mappa
Orari: dal lunedì al venerdì 8.45-12.30 14.45-19.30 il sabato fino alle 19.00
Affiliato
Studio Aosta 2 Snc
Via Boson, 1 (Angolo Via Torino), 11100 Aosta (AO)

2025 Tecnocasa Franchising S.p.A. - P. IVA 08365160152 - Via Monte Bianco 60/A 20089 Rozzano (MI). Ogni agenzia ha un proprio titolare ed è autonoma. Privacy policy | Policy utilizzo | Cookie policy